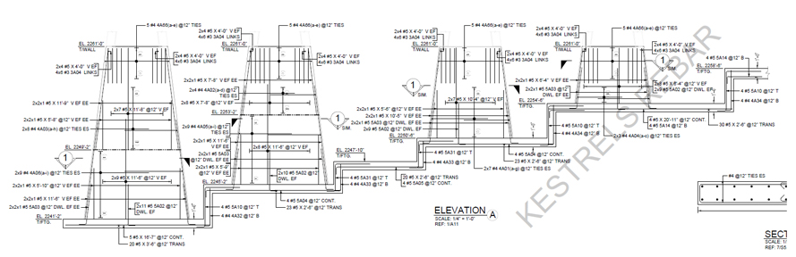
Rebar Estimation
This is the process of quantifying the reinforcement in a concrete structure, where we categorize the steel by type, bar size and bend category; element wise and segment wise. We also provide mesh and accessories details, as well as concrete quantities needed for a job; when it is included in the scope. At Kestrels rebar, our combined experience, we can estimate all of the rebar that you will need for your project. with our skilled staff, we can give our customers value-driven engineering options. We have a professional team that is wellrounded to give you fair and accurate estimates on schedule. we create detailed Estimation that stand out from the competition. The client is now armed with complete knowledge to be a confident competitor in the bidding process, to win the job.


